Description
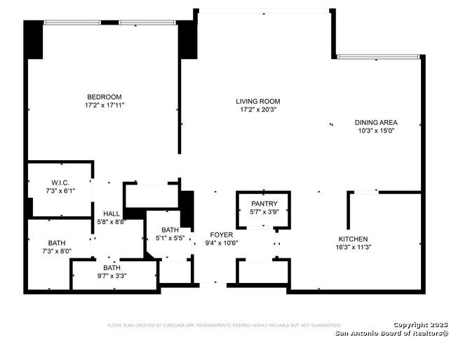
Seize this unique opportunity to elevate your living experience-make #606 yours today and discover the perfect blend of luxury and urban living in this stunning high-rise residence in San Antonio's heart. This exceptional property offers breathtaking skyline views each morning, noon, and night. Complemented by a spacious living room perfect for entertaining guests and a dining area that accommodates intimate dinners and larger gatherings. The home features a generously sized kitchen with ample storage space, ideal for culinary enthusiasts. The large bedroom includes custom-built Inns, a walk-in closet, a coat/utility closet, and a spacious ensuite bathroom. The bathroom is a sanctuary with a bathtub and shower, ample counter space, and a separate restroom area with an additional single shower. You'll also discover a beautifully lit dressing area with vanity mirrors and plenty of storage to keep everything organized. Residents will enjoy access to premium amenities, including 24/ 7 security, a doorman, fitness center, and an outdoor pool, ensuring a lifestyle of comfort and convenience. A garage parking space, guest parking, and a guest suite available for nightly purchase make hosting effortless. Additional benefits include proximity to the San Antonio Country Club, the University of Incarnate Word, and Fort Sam Houston. Do not miss this unique opportunity to enhance your urban living experience; it is all about this Texas view! Call your agent today!
-
1BEDS
-
N/AACRES
-
1BATHS
-
11/2 BATHS
-
1,326SQFT
-
$225$/SQFT
School Information
Description
Seize this unique opportunity to elevate your living experience-make #606 yours today and discover the perfect blend of luxury and urban living in this stunning high-rise residence in San Antonio's heart. This exceptional property offers breathtaking skyline views each morning, noon, and night. Complemented by a spacious living room perfect for entertaining guests and a dining area that accommodates intimate dinners and larger gatherings. The home features a generously sized kitchen with ample storage space, ideal for culinary enthusiasts. The large bedroom includes custom-built Inns, a walk-in closet, a coat/utility closet, and a spacious ensuite bathroom. The bathroom is a sanctuary with a bathtub and shower, ample counter space, and a separate restroom area with an additional single shower. You'll also discover a beautifully lit dressing area with vanity mirrors and plenty of storage to keep everything organized. Residents will enjoy access to premium amenities, including 24/ 7 security, a doorman, fitness center, and an outdoor pool, ensuring a lifestyle of comfort and convenience. A garage parking space, guest parking, and a guest suite available for nightly purchase make hosting effortless. Additional benefits include proximity to the San Antonio Country Club, the University of Incarnate Word, and Fort Sam Houston. Do not miss this unique opportunity to enhance your urban living experience; it is all about this Texas view! Call your agent today!
Related Properties

© 2026 Information provided courtesy of LERA MLS. All rights reserved. IDX information is provided exclusively for consumers' personal, non-commercial use and may not be used for any purpose other than to identify prospective properties consumers may be interested in purchasing. Information is deemed reliable but is not guaranteed accurate by the LERA MLS or Michelle Campbell | The Campbell Group. Last updated 2026-02-16T13:33:06.697.