Skip To Content

10320 Lassen Park

Converse, TX 78109
  • $276,499
  • STATUS: Active
  • ON SITE: 44 Days
  • MLS #: 1912240
UPDATED: 51 min ago
$276,499
  • 3
    BEDS
  • 0.11
    ACRES
  • 2
    BATHS
  • 1
    1/2 BATHS
  • 1,470
    SQFT
  • $188
    $/SQFT
Neighborhood:
Type:
Single-Family Home
Built:
2025
County:
Area:

School Information

Elementary School:
Middle School:
High School:
School District:

Description

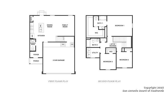
Welcome to The Davis, a two-story home located at Sereno Springs in Converse, TX. This floor plan offers 2 classic exteriors and 2-car garage. Inside this 3 bedroom, 2.5 bathroom home, you'll find 1489 square feet of living space. The entry opens to a gourmet kitchen before flowing into the dining and family room with an open floorplan concept. The kitchen includes quartz counter tops, quality cabinetry, stainless steel appliances, large breakfast island, and pantry. Head up the stairs to find the main bedroom suite, all secondary bedrooms, the laundry room, and a full bath. The Davis layout is perfect if you love entertaining downstairs and relaxing upstairs. The private main bedroom features an attractive ensuite with quality cabinetry. A spacious tiled walk-in shower and large walk-in closet provide all the space and convenience you need. Additional features of The Davis floor plan include sheet vinyl flooring in entry, living room, and all wet areas, quartz counter tops in all bathrooms and HOME IS CONNECTED base package. Using one central hub that talks to all the devices in your home, you can control the lights, thermostat and locks, all from your cellular device.

Monthly Payment Calculator



© 2025 San Antonio Board of REALTORS® All rights reserved. IDX information is provided exclusively for consumers' personal, non-commercial use and may not be used for any purpose other than to identify prospective properties consumers may be interested in purchasing. Information is deemed reliable but is not guaranteed accurate by the MLS or Michelle Campbell | The Campbell Group. Last updated 2025-11-16T12:32:44.5.
www.sellingsahomes.com/homes/168469117
Print Image

10320 Lassen Park Converse, TX 78109

  • Price: $276,499
  • Status: Active
  • On Site: 44 Days
  • Updated: 51 min ago
  • MLS #: 1912240
3
Beds
2
Baths
1
½ Baths
0.11
Acres
1,470
SQFT
$188
$/SQFT
2025
Built
Neighborhood:
Sereno Springs
County:
Bexar
Area:
Converse
Elementary School:
Tradition
Middle School:
Heritage
High School:
East Central
School District:
East Central I.S.D
Property Description
Welcome to The Davis, a two-story home located at Sereno Springs in Converse, TX. This floor plan offers 2 classic exteriors and 2-car garage. Inside this 3 bedroom, 2.5 bathroom home, you'll find 1489 square feet of living space. The entry opens to a gourmet kitchen before flowing into the dining and family room with an open floorplan concept. The kitchen includes quartz counter tops, quality cabinetry, stainless steel appliances, large breakfast island, and pantry. Head up the stairs to find the main bedroom suite, all secondary bedrooms, the laundry room, and a full bath. The Davis layout is perfect if you love entertaining downstairs and relaxing upstairs. The private main bedroom features an attractive ensuite with quality cabinetry. A spacious tiled walk-in shower and large walk-in closet provide all the space and convenience you need. Additional features of The Davis floor plan include sheet vinyl flooring in entry, living room, and all wet areas, quartz counter tops in all bathrooms and HOME IS CONNECTED base package. Using one central hub that talks to all the devices in your home, you can control the lights, thermostat and locks, all from your cellular device.
Exterior Features

Exterior BrickSidingCement Fiber Exterior Features Covered PatioPrivacy FenceSprinkler SystemDouble Pane Windows Lot Dimensions 40x120 Lot Improvements Street PavedCurbsStreetlights Parking Two Car Garage Pool Spa None Pool YN No Roof Composition Stories 2 Style Two Story

Interior Features

Air Conditioning One Central Bedroom2 Length 10 Bedroom2 Width 10 Bedroom3 Length 10 Bedroom3 Width 11 Dining Room Length 14 Dining Room Width 8 Energy Efficiency 13-15 SEER AXProgrammable ThermostatDouble Pane WindowsRadiant BarrierLow E Windows Family Room Length 14 Family Room Width 12 Fireplace Not Applicable Floor CarpetingVinyl Foundation Slab Heating Central Heating Fuel Natural Gas Inclusions Washer ConnectionDryer ConnectionStove/RangeGas CookingDisposalDishwasherIce Maker ConnectionVent FanSmoke AlarmGas Water Heater Interior One Living AreaLiv/Din ComboIsland KitchenBreakfast BarAll Bedrooms UpstairsOpen Floor PlanLaundry Upper LevelLaundry RoomWalk in ClosetsAttic - Pull Down Stairs Kitchen Length 14 Kitchen Width 13 Master Bath Shower OnlySingle Vanity Master Bath Length 8 Master Bath Width 8 Master Bedroom UpstairsWalk-In ClosetFull Bath Master Bedroom Length 16 Master Bedroom Width 14 Utility Room Length 8 Utility Room Width 6 Window Coverings All Remain

Property Features

Approx Age 0 Builder Name D.R. Horton Certified Tax Year 2024 Construction New Currently Being Leased No Hoa Fee1 105 Hoa Frequency Quarterly Hoa Mandatory Mandatory Hoa Name1 INFRAMARK COMMUNITY MANAGEMENT Miscellaneous Builder 10-Year WarrantyNo City TaxVirtual Tour Multiple Hoa No Neighborhood Amenities None Proposed Terms ConventionalFHAVATX VetCash Source Sq Ft Bldr Plans Subdivision Legal Name N/A Taxed By Multiple Counties No Total Tax 1.726154 Utility Supplier Electric CPS Utility Supplier Garbage CentralWaste Utility Supplier Gas CPS Utility Supplier Sewer SARA Utility Supplier Water SAWS Water Sewer Water SystemSewer System

Listing information © Copyright 2025 San Antonio Board of REALTORS®, All Rights Reserved.
Listing provided courtesy of R.J. Reyes of Keller Williams Heritage: rj@kwthesignaturegroup.com, (210) 842-5458.


© 2025 San Antonio Board of REALTORS® All rights reserved. IDX information is provided exclusively for consumers' personal, non-commercial use and may not be used for any purpose other than to identify prospective properties consumers may be interested in purchasing. Information is deemed reliable but is not guaranteed accurate by the MLS or Michelle Campbell | The Campbell Group. Last updated 2025-11-16T12:32:44.5.
 
https://bt-photos.global.ssl.fastly.net/sabor/orig_boomver_1_1912240-2.jpg https://bt-photos.global.ssl.fastly.net/sabor/orig_boomver_1_1912240-2.jpg https://bt-photos.global.ssl.fastly.net/sabor/orig_boomver_1_1912240-2.jpg
Logo
Michelle Campbell | The Campbell Group
15510 Vance Jackson Rd
San Antonio TX, 78218